Проект строительства нового корпуса для музыкальной школы № 7 имени С. В. Рахманинова по улице Технической в Екатеринбурге получил положительное заключение историко-культурной экспертизы. Часть средств на строительство организаторы собирали через сервис краудфандинга.
Учебное заведение самостоятельно собрало средства и создало эскизный проект нового корпуса. Помощь горожан потребовалась на этапе разработки проектно-сметной документация. Половину от необходимой суммы в размере 2 млн рублей оплатили за счет бюджета Екатеринбурга. Оставшуюся часть удалось собрать через добровольные пожертвования.
Когда деньги удалось собрать и разработать документацию, начались экспертизы. Историки разрешили проведение работ.
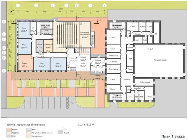
Сейчас школа размещается в небольшом двухэтажном здании. Поскольку число учеников только растет, в последние годы остро встал вопрос о расширении. В планах возвести новый корпус площадью 1,5 тыс. кв. Его соединят с действующим школьным зданием. За свою историю школа воспитала известных музыкантов, артистов и солистов Государственного Академического Большого театра России, Камерного оркестра «Солисты Москвы» под управлением Юрия Башмета, Оркестра Свердловской государственной филармонии, Свердловского Академического театра оперы и балета, Всероссийского юношеского симфонического оркестра под управлением Юрия Башмета.





Волонтеры фонда "Том Сойер Фест" запустили сбор средств на восстановление ограды XIX века в Сысерти27 марта 2023 в 13:42
